L&M Design Lab Shanghai offices
立木设计研究室近日完成了其上海办公室的改造,一套90年代居民小区里的底层狭长住宅经过一个月的改造,脱胎换骨,带着朴素的诗意和魔幻的潇洒,像一条通往未来的时光隧道,让时尚的梦想照进现实。
改造前的房屋呈一字长条,两室无厅外加一个幽暗的小天井,东西面宽3.3米,南北进深20米。采光通风很不理想,空间尺度也处处捉襟见肘,很难将这样的“老破小”和时尚先锋的工作室联系在一起。
▽ 隐没在树丛中的底层住宅
▽ 改造前室内现状
镜桥
越是在矛盾冲突的土壤里,越是容易迸发出动人的萌芽。对于改造前室内的最大问题“长”和“暗”,无论是分隔以变短还是开灯使变亮都显得不够自然。保留住长条形空间的独特体验并优化空间尺度,同时尽可能增加室内自然光线的反射才是原汁原味的解决之道。
怎样才能将底层室外的珍贵阳光尽可能多的反射到室内?
怎样才能避免直接反射给办公区域带来的眩光?
怎样才能使单调狭长的走道变得灵动富有趣味?
呼之欲出的解决之道是一片扭转的镜面不锈钢桥,一道灿烂的银色漩涡!
▽ 镜面不锈钢漩涡形态生成分析
▽ 扭转的镜面不锈钢装置激活整个室内空间

▽ 改造对采光、通风、视线的诸多提升

扭转的金属面使得光线在室内多次反射,增加照度的同时也创造出时光隧道般的魔幻体验。与此同时,开放式的工作区令南北两侧的窗口得以彼此相望,对穿的气流显著提升了室内环境舒适度。
▽ 镜面不锈钢结构分析图
在确定了“镜桥”的设计方向之后,一系列的结构研究优化了不锈钢自身的建构逻辑,落地部分支撑的形式和其形态自身的张力一定程度上减轻了施工的难度。
把设计理念藏进房子
扭转的镜面不锈钢桥联通南北,一举三得的解决了采光、通风和尺度问题,这似乎宣告着这个设计的胜利结束。但对于一个设计工作室的使用,服务空间的组织却尚未臻于完美。相比于梦幻和浪漫,实用和理性也同样重要。
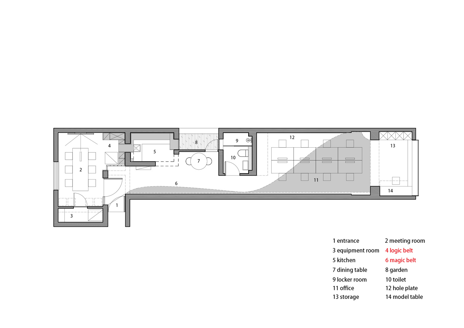
设计试图通过对辅助功能的理性梳理,隐喻立木事务所的设计理念:逻辑(Logic)&魔力(Magic),即追随逻辑,创造魔力!
于是打通会议室,联通厨房和庭院变得顺理成章,如果把镜面不锈钢桥比作一条充满魔力的神奇飘带,那集成了诸多实用功能,从会议室蜿蜒而出,串联起厨房、庭院的线性环绕式储物空间或许就是追随理性的“逻辑带”。
“逻辑带”和“魔力带”双管齐下,曲直相望,共同赋予了这套老房子全新的生命。
▽ “逻辑带”和“魔力带”

▽ 改造后平面图
▽ 改造后立面图
▽ 带有强烈方向感的入口
▽ 入口看会议室,竖直的木头隐喻“立木”的名字
▽ 水平延展的会议室
▽ 会议室内的“逻辑带”的起点
▽ 方便传送酒和咖啡,厨房和会议室之间“逻辑带”上的洞口
▽ 多功能复合使用的“逻辑带”
▽ 曲直相望的“逻辑带”和“魔力带”
▽ 串联南北的镜面不锈钢桥“魔力带”
“魔力带”如同一道银色漩涡汇集了周边所有景色,并在其表面如涓涓细流般向室内流淌。
曲线在洽谈区逐渐收缩,局部隆起形成鱼尾吧台,既实现了使用功能,又以半遮蔽障景手法避免了从门厅到工作区的视线直达。
▽ “魔力带”的起点:鱼尾吧台
▽ 入口看工作区
与传统障景手法的不同在于,银色漩涡的材料和曲率使其折射出周边空间非凡的降维景象,时尚和魔幻兼而有之。
▽ 时空隧道般的“银色漩涡”
▽ 时尚浪漫的办公区域
▽ 镜面不锈钢提升室内整体亮度
▽ 南侧绿意盎然的阳光房
▽ 夜色下的工作室内景
▽ 道路一窥
本项目改造正是上海四万万方存量住宅转变的一个缩影,虽然面积小、现状难,但依然可以如那燎原的星星之火,点亮平凡生活里的浪漫诗意。
供稿:立木设计,来源:时尚办公网,转载请注明。
上一篇:致敬Art Deco 科尔尼A.T. Kearney管理咨询伦敦总部办公设计欣赏
画舞空间 在线理财机构MoneySuperMarket伦敦办公设计欣赏
光之雕塑 Jabil Optics捷普光学以色列办公设计欣赏
光影流动 Jabil Optics捷普光学德国耶拿办公设计欣赏
阳光家园 慈善组织Compassion英国汉普郡总部办公设计欣赏
真我人生 探险旅游公司Intrepid travel伦敦办公设计欣赏
建筑宣言 美国奶农Dairy Farmers of America堪萨斯总部办公设计欣赏
下一篇:精益求精 iCourt新橙科技北京办公设计欣赏
>> 更多案例欣赏: 设计公司 广告公司 法律与咨询公司 网络公司 软件公司 google各地办公 Yandex各地办公