UCCA Center for Contemporary Art Beijing Offices By CUN寸DESIGN
曾有人说:“当代艺术是一群不入主流的边缘人,关在一个地方任其他人参观他们边缘化的生活方式。”也有人说:“这个群体是一个社会的缩影,充满各种元素和各种冲突,是一个你想看什么就有什么的地方。”对于随着时代一起向前转的UCCA尤伦斯当代艺术中心洋洋洒洒总是一波又一波。然而在高速发展的时代中不曾高频次变化的,并带给人群对品牌最强记忆点的,就是设计。
“你去过UCCA尤伦斯当代艺术中心吗?”


从2007年开始就坐落在798核心区域的厂房建筑群中的UCCA尤伦斯当代艺术中心,至今已经成为了北京艺术中心的标志性重要地点。UCCA成立之前,建筑空间位于原国营第七九八厂,并以“大窑炉”的名称为人所知。从2007年至今,UCCA经历了建筑师让-米歇尔·维勒莫特(Jean-Michel Wilmotte);马清运;建筑师张永和及“非常建筑”工作室;建筑师库哈斯(Rem Koolhaas)及OMA(Office for Metropolitan Architecture)建筑事务等诸多设计师想法的叠加。

2018年初CUN寸DESIGN收到一个委托,改造UCCA尤伦斯当代艺术中心的室内部分。这部分工作主要包括UCCA的办公区域改造与UCCA儿童艺术中心。
CUN寸DESIGN对UCCA尤伦斯当代艺术中心二至四层空间进行梳理,为了提高品牌文化的在地性,将现有空间进行重新布局。运用最新的UCCA的VI系统,把平面比例复制运用到空间比例当中。

作为物理空间、精神空间与社会空间的统一结合体,根据UCCA自身属性的综合性和独特的认知角度,设计让整个空间都以白色为主基调。

并结合原有建筑钢结构的基础上,使空间造型恰好可以让曲线延伸,形成拱形走廊,成为使用者们最常接触的场地和形成进入者与空间之间的关系。

建筑的二层为UCCA儿童艺术中心,面向2-11岁儿童,旨在通过引导儿童对艺术的感知、思考、创造及表达,全面开发他们的知行体系,使他们用一种全新的艺术视角来处理自我与外界的关系。每一层的走廊都贯穿了整层的行为动线,优先所需功能的丰富度,优化各功能的体验品质。
以UCCA的VI系统为造型处理的家长等候区域为核心,左右两侧设置了11间的亲子及儿童教育班,每一间教室都结合了建筑创造的私密性,形成教育独立性,同时又融入在整个大空间中。克制和设计的退让性,把更朴质和更包容的空间留给孩子们自己去想象。
设计在整层空间中没有用到一处直射光源,二层所有的光都来自漫反射光源,并且这种光挑选了对儿童保护范围的选择。
设计师创造了一款可适用于各种课程需要的道具模块,由四种不同长度的构件、连接件组成。利用协同作用的方式,根据实际需要可自由扩张和收缩。

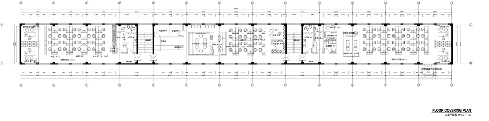
建筑的三至四层都属于UCCA尤伦斯当代艺术中心的办公空间,在这次的办公设计中CUN寸DESIGN基于使用数据来插入办公模块,给出了不同工作需求、权限、角色、采访、会话集及角色的层次、协同工作等之间的关系。

走廊有品牌文化的同时具备员工休闲区域,贯穿平层对于楼层的约束,每个局部空间打通,让不同空间之间的无缝协同工作。每一个空间都以不同的形式巧妙地衔接起另外的一个空间,使员工、投资人、外来访客都可以在拥有清晰视觉的空间中自由穿行。
对于办公空间,会发现整个办公环境里这么多人,会产生很多不同的行为。设计师提出一个概念,叫做 “空间调色(Palette of Place)”,把整个公司看做一个整体的环境,里面要能支持各种各样的办公行为,每一个微环境都是要有特殊的功能去支持的。




设计最初的目的就是解放使用者在一个空间中的“工作八小时”,知识工作者需要移动,他们很多时间是不在办公桌前面的,研究发现,最有效率的工作者1/4的工作时间都不在办公室里,他们要么在开会,要么在外面非正式地交流及办公,甚至在参加活动上,因此,空间中提供了不同的办公家具组合,能支持应对不同工种的办工状态。

对于UCCA尤伦斯当代艺术中心的设计,更像是把这座“艺术车间”内部调整的更加适合,这才能使它以一种独一无二的身份介入人们的城市生活中,让自己的时间和技能直接转化为生产力。
做办公空间也好,做儿童艺术中心也好,其实最终的依旧是人。空间设计只是一个具有激活属性的道场,这种具有文化输出的地方才是最主要的。站在这里,任时光流逝,当光线透过朝阳的大窗户倾斜进来,旧彻底旧,新彻底新,当下和未来在同一个空间里凝结。
这里是CUN寸DESIGN为UCCA尤伦斯当代艺术中心制作的新衣,致敬!
供稿:CUN寸DESIGN,来源:时尚办公网,转载请注明。
上一篇:色彩“天空” 西班牙马德里LH135老办公楼的修复设计欣赏
重塑办公美学 洋酒公司William Grant & Sons印度办公室创新设计
温润北欧风 SUEZ苏伊士环境集团悉尼办公设计欣赏
时尚红与黑 德国HAMA波兰拉巴科沃总部改造设计欣赏
身临奇境 百融云创总部设计欣赏
小巧简约 德国汉堡Code Working Space联合办公空间设计欣赏
自然之芯 英特飞Interface英国伯明翰办公设计欣赏
下一篇:活力时尚 Dairy Queen冰淇淋皇后布卢明顿总部办公设计欣赏
>> 更多案例欣赏: 设计公司 广告公司 法律与咨询公司 网络公司 软件公司 google各地办公 Yandex各地办公