引领核能行业新形象:NEI华盛顿办公室的空间革新

Nuclear Energy Institute Washington By FOX Architects

整理:时尚办公网 | 发布时间:2025年09月25日
引领核能行业新形象:NEI华盛顿办公室的空间革新
设计:FOX Architects
地址:美国 华盛顿
面积:4,645 平方米
时间:2025年
摄影:Erin Kelleher
Tags:能源/矿业/石油,前瞻性、专业创新、灵活可变、品牌升级、多元协作、流动曲线、温暖木色、开放包容、未来适应性、蓝色

FOX Architects设计团队将位于华盛顿特区的核能研究所办公室(NEI)打造成一个前瞻性工作空间,完美融合专业创新与灵活可变性,生动诠释了该机构焕然一新的品牌形象与协作愿景。

引领核能行业新形象:NEI华盛顿办公室的空间革新

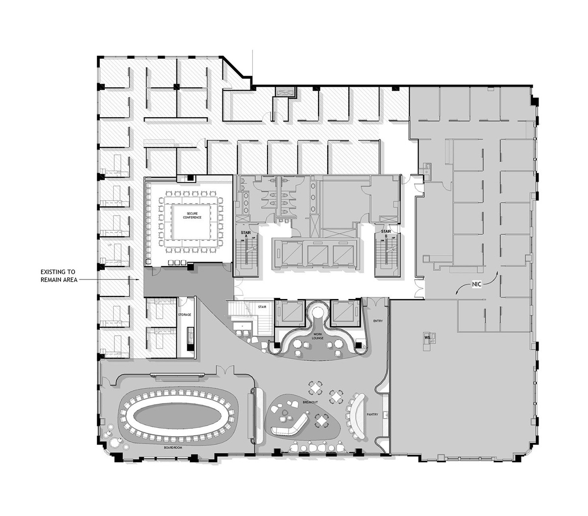
NEI向设计团队提出一个明确而宏伟的蓝图:重新构想其现有办公空间,使其既能体现品牌战略的革新,又能满足现代职场日益变化的需求。作为核能行业的权威发声机构,核能研究所需要的办公环境既要彰显其重塑后的品牌形象,又要支持多样化功能——从接待外部利益相关者的高层董事会会议,到充满活力的日常协作与活动举办。

设计的核心挑战在于打造一个兼顾专业性与创新性的工作场所,既要体现前瞻视野又要植根于核能研究所的核心价值观。从"核能进化"理念中汲取灵感,设计致力于构建一个更加以人为本、灵活可变且面向未来的环境,使其既能成为全球对话的舞台,亦可化作内部创新的枢纽。

引领核能行业新形象:NEI华盛顿办公室的空间革新 引领核能行业新形象:NEI华盛顿办公室的空间革新

在既有建筑结构坚实的基础上,设计团队通过全新的空间策略与精致饰面叠加出核能研究所的成长轨迹与现代方向。设计以流畅的曲线柔化了原本刚性的矩形布局,引入呼应行业变革的动态感与流动性。冷硬的表面被温暖的木色调、柔和照明以及触感丰富的材料所取代——营造出更富亲和力且沉稳的氛围,与核能研究所安全、责任与创新的品牌价值相契合。

引领核能行业新形象:NEI华盛顿办公室的空间革新 引领核能行业新形象:NEI华盛顿办公室的空间革新

本次改造的核心亮点是重塑三层楼梯结构,将其打造为引人注目的视觉焦点。定制的灯光装置与背光特色墙将这一功能核心升华为戏剧性的建筑宣言——如同贯穿空间的垂直脉络,象征着连接、进步与远见。

引领核能行业新形象:NEI华盛顿办公室的空间革新 引领核能行业新形象:NEI华盛顿办公室的空间革新

最终成果是一个灵活且面向未来的工作场所,使核能研究所能够从容承办大型董事会会议、高端行业活动以及协作会议。从空间流线到触感材质,每个细节都经过精心甄选,以强化核能研究所的使命,培育开放包容、鼓励对话与前瞻思维的文化。这不仅是焕然一新的办公空间,更是"核能进化"理念的实体呈现:一个不仅令人赞叹,更旨在激发灵感的环境。

引领核能行业新形象:NEI华盛顿办公室的空间革新 引领核能行业新形象:NEI华盛顿办公室的空间革新 引领核能行业新形象:NEI华盛顿办公室的空间革新

特色产品应用——

1、Sachet接待椅,品牌:Davis Furniture

引领核能行业新形象:NEI华盛顿办公室的空间革新

2、Vika休闲椅,品牌:Bernhardt Design

引领核能行业新形象:NEI华盛顿办公室的空间革新

3、Oslo休闲椅,品牌:Bernhardt Design

引领核能行业新形象:NEI华盛顿办公室的空间革新

4、Becca组合沙发,品牌:Bernhardt Design

引领核能行业新形象:NEI华盛顿办公室的空间革新

编译:时尚办公网,转载请注明。