船管巨头 Anglo-Eastern新加坡:将海事美学写入办公场域

Anglo-Eastern Offices Singapore By Bean Buro

整理:时尚办公网 | 发布时间:2025年10月26日
船管巨头 Anglo-Eastern新加坡:将海事美学写入办公场域
设计:Bean Buro
设计团队:Lorene Faure、Kenny Kinugasa-Tsui、Michelle So、Michael Wong、Patrick Wiejoyo
现场设计服务:LFA Studio
地址:新加坡
面积:3,437 平方米
时间:2025年
摄影:Daniel Koh
Tags:交通/海运,海事美学、航海精神、协作岛、流动、力量、声光感官设计、品牌属性、定制化、亲生命元素、柔美曲线、新加坡在地文化、诗意

Bean Buro 设计的Anglo-Eastern新加坡办公室:以精致流畅的布局与定制化细节体现企业海事文化属性,构筑促进协作与焕发活力的现代工作空间。

船管巨头 Anglo-Eastern新加坡:将海事美学写入办公场域

01/ 项目背景:跨越国界,锚定品牌身份

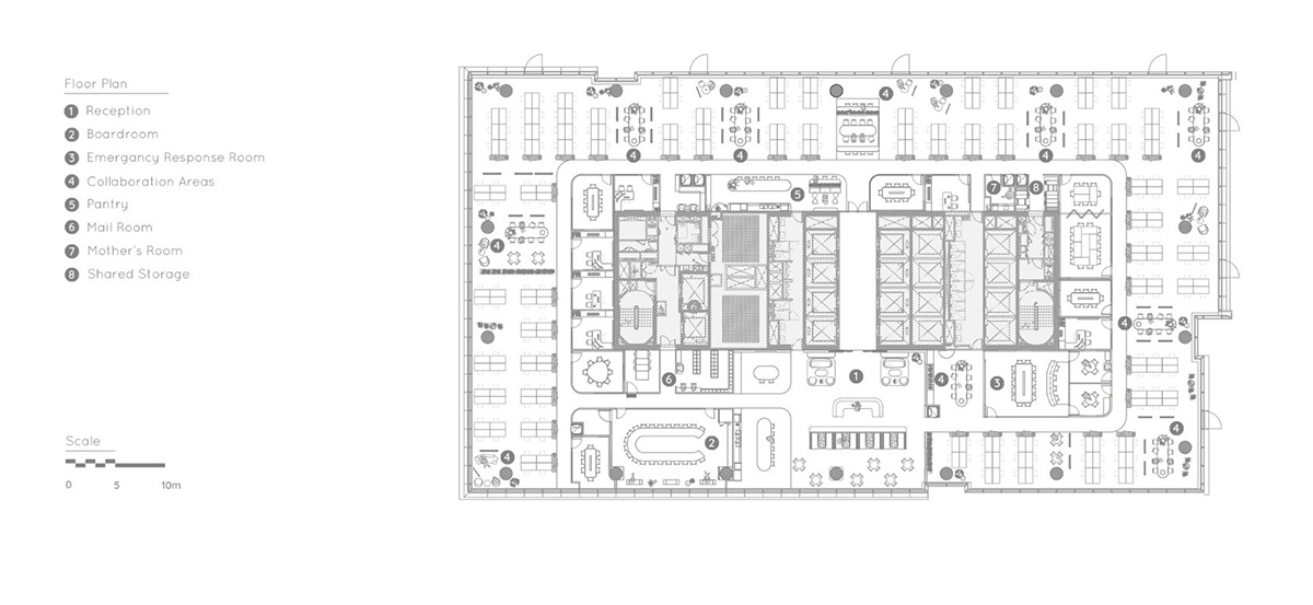
作为全球领先的船舶管理公司之一,Anglo-Eastern 委托Bean Buro为其设计位于新加坡、横跨两个楼层、总面积达3,437平方米的新办公场所。此次合作是设计团队为其完成香港总部设计后的自然延伸。客户要求新办公空间需体现与香港总部一脉相承的品牌实力、优雅格调与清晰身份,同时引入细微的改进与契合地域特色的设计元素。其目标是打造一个灵活、鼓舞人心且彰显自信的环境,既根植于公司的海事传统,又能契合现代工作方式,为新加坡团队服务。

船管巨头 Anglo-Eastern新加坡:将海事美学写入办公场域 船管巨头 Anglo-Eastern新加坡:将海事美学写入办公场域 船管巨头 Anglo-Eastern新加坡:将海事美学写入办公场域

02/ 设计叙事:海之颂

设计概念之旅始于海洋——它是Anglo-Eastern企业身份的强力象征。设计团队从航运结构、航海形态、以及船舶与码头的抽象语言中汲取诗意灵感,构建出一个呼应力量感、流动感与匠心精神的空间叙事。设计借鉴了海事艺术与造船传统的元素,同时呼应项目所在地拉布拉多塔(Labrador Tower)的建筑语境——这座象征着新加坡航海历史与现代宏图的标志性建筑。

船管巨头 Anglo-Eastern新加坡:将海事美学写入办公场域 船管巨头 Anglo-Eastern新加坡:将海事美学写入办公场域 船管巨头 Anglo-Eastern新加坡:将海事美学写入办公场域

03/ 设计过程:航海精神的匠心铸造

设计流程自起始便强调香港工作室与新加坡驻地设计团队的紧密协作。设计团队从传统航海细节——如船体般的流畅曲线与铆钉图案——中汲取灵感,并将其抽象化地融入木作细节与定制家具之中。精心打造的弧形元素,旨在唤起船体所蕴含的有机力量,而数字建模与实体模型的反复推敲,则确保了每一条曲线、每一处接缝都精准和谐。这些探索共同塑造出一种兼具诗意与专业气质、自信从容的空间语言。

船管巨头 Anglo-Eastern新加坡:将海事美学写入办公场域 船管巨头 Anglo-Eastern新加坡:将海事美学写入办公场域 船管巨头 Anglo-Eastern新加坡:将海事美学写入办公场域

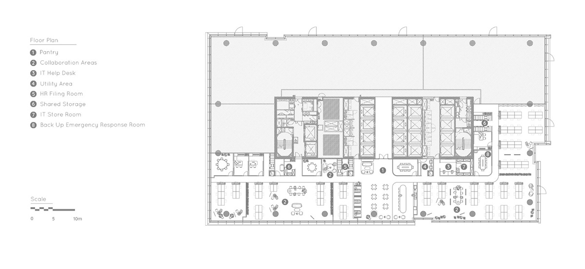
04/ 解决方案:流动与功能的和谐共生

在空间布局上,整个设计遵循着从抵达、协作到专注区域的清晰动线。接待区作为迎宾锚点,以雕塑感、开放性与充沛采光为整体工作空间定下基调。越过此区域,开放式平面以流畅的动线模式展开,其间点缀着作为互动与休憩节点的协作"岛屿"。该布局在促进可视性与参与感的同时,亦尊重专注工作区域。茶水区融合了接待功能与工作空间——凭借面向海洋的视野打造出生机勃勃的社交枢纽——进一步强化了与自然和社群的连接。

船管巨头 Anglo-Eastern新加坡:将海事美学写入办公场域 船管巨头 Anglo-Eastern新加坡:将海事美学写入办公场域 船管巨头 Anglo-Eastern新加坡:将海事美学写入办公场域 船管巨头 Anglo-Eastern新加坡:将海事美学写入办公场域 船管巨头 Anglo-Eastern新加坡:将海事美学写入办公场域 船管巨头 Anglo-Eastern新加坡:将海事美学写入办公场域

05/ 材质搭配:航海主题的配色美学

该项目的材质配色方案是香港总部设计的精致延续,同时针对新加坡的日光与气候进行了重新诠释。设计以深海军蓝与纯白色为基调——这两种常见于海军制服与船舶外观的色彩,搭配温暖木色调与勃艮第红作为点缀。这些色调为空间赋予了沉稳质感与温暖气息。接待台与协作台等定制家具采用光滑亚光表面与柔和曲线处理,赋予其雕塑般的、宛如船体的存在感,悄然吸引着人们的目光。

船管巨头 Anglo-Eastern新加坡:将海事美学写入办公场域 船管巨头 Anglo-Eastern新加坡:将海事美学写入办公场域 船管巨头 Anglo-Eastern新加坡:将海事美学写入办公场域 船管巨头 Anglo-Eastern新加坡:将海事美学写入办公场域

06/ 感官设计:光影、声境与诗意的邂逅

自然光在设计中扮演着关键角色,尤其是在拥有全景落地窗、引海景入室的接待区与茶水区。在茶水区上方,设计了带有水波纹理的金色天花装饰——这一精巧而动人的细节,既唤起波浪的流动意象,又为空间洒下斑驳光影。如此诗意的处理将功能区域升华为感官体验。开放式平面中采用软包隔断以优化声学环境,同时融入亲生命元素与通透材质,有效提升全天候的舒适感与专注度。

船管巨头 Anglo-Eastern新加坡:将海事美学写入办公场域 船管巨头 Anglo-Eastern新加坡:将海事美学写入办公场域 船管巨头 Anglo-Eastern新加坡:将海事美学写入办公场域 船管巨头 Anglo-Eastern新加坡:将海事美学写入办公场域 船管巨头 Anglo-Eastern新加坡:将海事美学写入办公场域

07/ 挑战:跨地域设计

此次从香港进行远程设计,这意味着设计团队必须做到精准高效,并与新加坡合作团队保持深度默契。应对当地特有的场地限制与工期压力需要高度的灵活性。然而,这种空间距离反而转化为了优势——它促使决策过程更清晰,也加深了双方对设计语言的信任。作为再次委托的客户,Anglo-Eastern 赋予设计团队更大的创作空间,推动设计突破既定框架。新增元素——如茶水区墙面的船钟装置与精选海事摄影作品——深化了人与海洋的情感联结,在工作空间中营造出处处可见的探索乐趣与惊喜时刻。

船管巨头 Anglo-Eastern新加坡:将海事美学写入办公场域 船管巨头 Anglo-Eastern新加坡:将海事美学写入办公场域 船管巨头 Anglo-Eastern新加坡:将海事美学写入办公场域 船管巨头 Anglo-Eastern新加坡:将海事美学写入办公场域 船管巨头 Anglo-Eastern新加坡:将海事美学写入办公场域 船管巨头 Anglo-Eastern新加坡:将海事美学写入办公场域 船管巨头 Anglo-Eastern新加坡:将海事美学写入办公场域 船管巨头 Anglo-Eastern新加坡:将海事美学写入办公场域 船管巨头 Anglo-Eastern新加坡:将海事美学写入办公场域 船管巨头 Anglo-Eastern新加坡:将海事美学写入办公场域 船管巨头 Anglo-Eastern新加坡:将海事美学写入办公场域 船管巨头 Anglo-Eastern新加坡:将海事美学写入办公场域

编译:时尚办公网,转载请注明。