德国百年企业REWE集团总部:降本增效局部改造实录

REWE Markt HQ West Hurth By b-k-I

整理:时尚办公网 | 发布时间:2026年01月13日
德国百年企业REWE集团总部:降本增效局部改造实录
设计:brandherm + krumrey(b-k-i)
地址:德国 于尔特
面积:160+480+N 平方米
时间:2021-2025年
摄影:Joachim Grothus、Maike Piorr
Tags:零售/连锁超市,总部、改造与升级、接待门厅、会议与培训、员工食堂、多元复合空间、开放办公、声光优化、都市美学、灵活分区、高品质、原始结构、识别度、可持续

对既有建筑进行现代化改造,是推动建筑业向可持续模式转型的关键实践之一。位于科隆附近的REWE总部项目,便是此类改造的生动范例:该项目将一座建成于1990年代的空间进行全面焕新与功能升级。本案由brandherm + krumrey事务所精彩呈现。

德国百年企业REWE集团总部:降本增效局部改造实录

作为欧洲领先的贸易与旅游集团之一,REWE集团每天影响着数百万顾客的生活——无论是购买食品杂货、家居园艺用品,还是规划下一次商务差旅或假期。

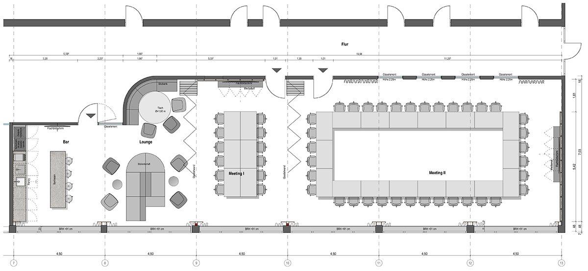
01/ 会议与培训空间的改造

设计团队:Susanne Brandherm、Martin Dierolf、Livia Chan

摄影:Joachim Grothus

针对REWE西区总部原有会议与培训空间的改造,旨在将其转型为可灵活重组的多功能复合空间。在植入全新使用逻辑的同时,项目亦注重构建美学表现与功能需求高度融合的优质空间体验。

此次改造的核心目标是打造一个既具独特魅力、又拥有鲜明识别度的设计空间。延续REWE西区总部其他项目的一贯理念,本次改造的重点同样聚焦可持续性与空间的多场景适应性。

德国百年企业REWE集团总部:降本增效局部改造实录 德国百年企业REWE集团总部:降本增效局部改造实录

相聚与交流

以“相聚与交流”为主题,设计将空间划分为多个主题区域,覆盖会议、协作办公与活动举办等多元场景需求。独特的空间分区赋予整体区域高度的使用灵活性。室内设计融合都市风格语言,并巧妙融合原有建筑肌理。例如,通过拆除原有悬挂网格吊顶,不仅提升了空间层高,更将裸露的肋形天花板结构转化为富有原始美感的视觉元素。定制照明系统进一步强化了天花的结构韵律,并塑造出丰富的光影氛围。咖啡吧与轻餐区采用亮红色天花、绿色墙面瓷砖与定制吧台,共同营造出精致而松弛的俱乐部氛围。

浅灰色的会议与协作办公区配置了高品质的会议桌椅及软包家具,为交流互动提供了舒适宜人的环境。墙面与暖气罩经重新设计,融入声学优化元素,有效提升了空间的声学舒适度。粗犷的纹理地毯在吸收噪音的同时,进一步强化了轻松且富有都市感的氛围。此次改造成功打造了一个集商务会议与工作坊功能于一体的新型空间枢纽,成为既有空间成功转型的范例。

德国百年企业REWE集团总部:降本增效局部改造实录 德国百年企业REWE集团总部:降本增效局部改造实录 德国百年企业REWE集团总部:降本增效局部改造实录 德国百年企业REWE集团总部:降本增效局部改造实录 德国百年企业REWE集团总部:降本增效局部改造实录 德国百年企业REWE集团总部:降本增效局部改造实录 德国百年企业REWE集团总部:降本增效局部改造实录 德国百年企业REWE集团总部:降本增效局部改造实录 德国百年企业REWE集团总部:降本增效局部改造实录 德国百年企业REWE集团总部:降本增效局部改造实录 德国百年企业REWE集团总部:降本增效局部改造实录

可持续性设计

空间使用者关怀:通过灵活的空间划分和适配多样化需求的个性化座位布置,共同营造出宜人且贴合身心的使用体验。

空间品质:通过优化声学设计、提升层高及定制照明方案,构建灵活可变的空间结构。

材料与产品选择:采用高品质材料、编织面料、高回收含量地材及低能耗照明系统。

为员工创造附加价值:规划过程中保持与员工的开放对话;改造基于员工的实际需求与期望;设计品质强化了员工的归属感与认同感。

德国百年企业REWE集团总部:降本增效局部改造实录 德国百年企业REWE集团总部:降本增效局部改造实录 德国百年企业REWE集团总部:降本增效局部改造实录 德国百年企业REWE集团总部:降本增效局部改造实录 德国百年企业REWE集团总部:降本增效局部改造实录 德国百年企业REWE集团总部:降本增效局部改造实录

02/ Trakt X开放办公区改造

设计团队:Martin Dierolf、Janina J?kel、Susanne Brandherm、Valeria Vysozki、David Dang

摄影:Maike Piorr

在远程办公与居家办公渐成常态的当下,团队线下共处的时间显得尤为珍贵。因其稀缺性,这样的时光更应被赋予高效能与启发性。事实上,那些能承载集体反思、促进共同学习并激发创造性协作的物理空间,正成为推动企业持续发展、提升员工满意度与幸福感的关键载体。

针对REWE西区分部于尔特的Trakt X项目,设计团队打造了一个符合这些需求的环境。在约480平方米的区域内,一个既有建筑中的开放式办公空间被改造为一个多功能培训与活动场所,旨在促进知识传递、激发创意与灵感。最终呈现的是一个充满氛围的空间,让人员、思想与多元视角在此交汇融合。

德国百年企业REWE集团总部:降本增效局部改造实录 德国百年企业REWE集团总部:降本增效局部改造实录

该区域的设计理念以交流与参与为核心:不同功能分区的设置,为集中学习、活跃讨论以及容纳多达50人的大型活动创造了多元空间。透明的玻璃折叠墙使该区域可根据需要灵活开合,既能营造私密的工作坊环境,也能形成宽敞的会议场所。

设计聚焦于温暖自然的材质。浅色亚麻地板与地毯铺面、声学天花构件以及精选家具,共同优化了声效与空间感知。精心搭配的色彩与照明方案,营造出兼具专业感与舒适度的氛围。位于空间中心的 #UMDENKBAR (一词双关:意为“可重新思考”与“酒吧”)为环境增添了叙事感,传递出“改变”的理念。它不仅是聚会场所,更象征着对惯常事物提出质疑、共同开拓新视野的追求:相遇即成为前进的契机。

德国百年企业REWE集团总部:降本增效局部改造实录 德国百年企业REWE集团总部:降本增效局部改造实录 德国百年企业REWE集团总部:降本增效局部改造实录 德国百年企业REWE集团总部:降本增效局部改造实录 德国百年企业REWE集团总部:降本增效局部改造实录 德国百年企业REWE集团总部:降本增效局部改造实录 德国百年企业REWE集团总部:降本增效局部改造实录 德国百年企业REWE集团总部:降本增效局部改造实录 德国百年企业REWE集团总部:降本增效局部改造实录 德国百年企业REWE集团总部:降本增效局部改造实录 德国百年企业REWE集团总部:降本增效局部改造实录 德国百年企业REWE集团总部:降本增效局部改造实录 德国百年企业REWE集团总部:降本增效局部改造实录 德国百年企业REWE集团总部:降本增效局部改造实录

03/ 入口接待区的改造

摄影:Joachim Grothus

自成立以来,REWE集团的总部一直位于科隆。该贸易集团的西区分部位于邻近的于尔特-埃费伦地区,其历史可追溯至上世纪90年代。由于原有接待区域的设计已显陈旧,brandherm + krumrey事务所受委托对这处160平方米的入口门厅进行现代化改造。

德国百年企业REWE集团总部:降本增效局部改造实录 德国百年企业REWE集团总部:降本增效局部改造实录

入口门厅改造中的一项主要设计挑战,是防火规范要求将门厅在空间上划分为两个区域。着眼于原有楼梯区域与实际接待区域这两个部分,设计团队提出了一个多功能“房中房”的设计构想。

进入空间的第一印象十分鲜明:楼梯以其雕塑般的形态成为视觉焦点,其旁侧是接待区——一个承载多种功能的宽敞“盒子”。它一方面引导通行,同时也作为临时办公区与会议区使用。在此,“房中房”的解决方案清晰可辨。动态且略带“粗犷感”的设计,结合既有建筑开放的槽形天花板以及间接照明,进一步强化了明晰的空间印象。温馨的色彩与材质选择既呼应了企业形象,又将其转化为一种舒缓而吸引人的氛围。经典的接待功能由此得以扩展,最终形成了温馨怡人的“REWE接待空间”。

德国百年企业REWE集团总部:降本增效局部改造实录 德国百年企业REWE集团总部:降本增效局部改造实录 德国百年企业REWE集团总部:降本增效局部改造实录 德国百年企业REWE集团总部:降本增效局部改造实录 德国百年企业REWE集团总部:降本增效局部改造实录 德国百年企业REWE集团总部:降本增效局部改造实录 德国百年企业REWE集团总部:降本增效局部改造实录 德国百年企业REWE集团总部:降本增效局部改造实录

04/ 功能多元的员工食堂

设计团队:Susanne Brandherm、Martin Dierolf、Livia Chan、Leyla Kasa

摄影:Joachim Grothus

REWE集团还对其员工食堂进行了全面升级改造。本次工程不仅对现有餐饮空间进行了现代化翻新,还同步完成了厨房区域的扩建。对b-k-i设计团队而言,核心挑战在于食堂位于建筑地下层——如何在满足客户打造明亮清新空间愿景的同时,突破场地本身的局限,成为设计的关键。

德国百年企业REWE集团总部:降本增效局部改造实录 德国百年企业REWE集团总部:降本增效局部改造实录

首先,设计团队必须调整现有的空间结构,以适应食堂厨房的扩建并满足新的功能需求。重新设计的空间不仅用于就餐,还可用于会议、协作办公和举办活动。通过打造开放区域和设置个性化座位选项,实现了空间的多样化用途。

为提升空间体验,原有的声学网格天花板被拆除,以增加层高的舒适度。裸露的天花板结构呈现出鲜明的肋状线条,赋予空间独特的个性,而悬挂的一排排吊灯进一步强化了这一特征。为改善室内声学效果,新设计的隔断和墙面装饰中融入了声学元素。

德国百年企业REWE集团总部:降本增效局部改造实录 德国百年企业REWE集团总部:降本增效局部改造实录 德国百年企业REWE集团总部:降本增效局部改造实录 德国百年企业REWE集团总部:降本增效局部改造实录

此外,新的家具配置可支持不同的使用场景,并通过暗调的红、绿色彩点缀营造出柔和的视觉层次。软包长凳、悬挂植物以及配餐台处的木格栅饰面共同确保了居家般的温馨氛围。沿窗区域延伸出的长桌(同样采用仿木饰面)既适合用餐,也便于使用笔记本电脑办公。

经过空间重构,原本功能单一的传统食堂,由此转型为“REWE休闲广场”,为员工提供了一个同样宜人且能激发活力的环境,无论是用于交流放松,还是协作办公。

通过对老建筑多处空间的改造,设计团队再次证明室内设计远不止于功能实现:它已成为对话、身份认同与文化的载体。能够传达态度并营造氛围的空间,可对工作文化产生深远影响——这也正是b-k-i事务所二十五年来始终秉持的理念。

德国百年企业REWE集团总部:降本增效局部改造实录 德国百年企业REWE集团总部:降本增效局部改造实录 德国百年企业REWE集团总部:降本增效局部改造实录 德国百年企业REWE集团总部:降本增效局部改造实录 德国百年企业REWE集团总部:降本增效局部改造实录 德国百年企业REWE集团总部:降本增效局部改造实录

编译:时尚办公网,转载请注明。