德国VBM医疗科技:员工餐厅亦是咖啡办公与社群枢纽

VBM Caring & Community Hub By Studio Komo

整理:时尚办公网 | 发布时间:2026年01月22日
德国VBM医疗科技:员工餐厅亦是咖啡办公与社群枢纽
设计:Studio Komo
地址:德国 巴登-符腾堡州
家具:UnternehmenForm
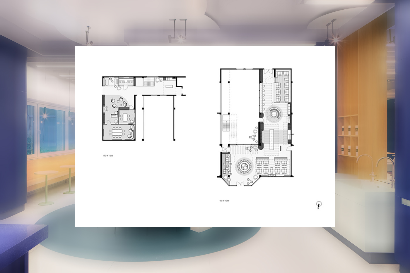
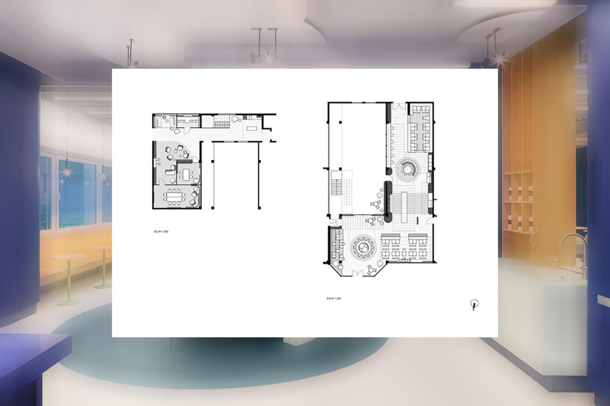
面积:1,200 平方米
时间:2024年
摄影:Philip Kottlorz
Tags:医疗,员工食堂、复合多元、社群枢纽、模块化、品牌诠释、声学优化、活力色彩、感官体验、居家感、灵活可变、员工关爱、协作与专注、凝聚力

Studio Komo设计团队为VBM医疗科技打造的员工餐厅,是一场全方位的感官盛宴。空间色彩绚丽优雅、材质富有表现力,不仅以鲜明的设计语言传递出品牌温度,更将企业对员工无微不至的关怀融入每一处细节中。VBM期待这份心意能被每一位员工真切感知。

德国VBM医疗科技:员工餐厅亦是咖啡办公与社群枢纽

从日间咖啡时光到夜晚的赛事狂欢,Studio Komo以色彩叙事与模块化家具,重新解构员工餐厅的边界——这里不只是用餐空间,更是一个融合专注办公、团队协作与社群活力的多元生态场域。

01/ 关爱与社群理念

VBM医疗科技公司位于内卡河畔苏尔茨的厂区,现已启用全新的多功能员工餐厅,内含休闲区与图书角。该项目由斯图加特的Studio Komo室内设计团队操刀,其设计理念紧密围绕客户的企业形象展开。空间选用UnternehmenForm品牌的家具系列进行舒适化与家居化布置,有效促进了员工间的交流与沟通。

员工餐厅的命名经过深思熟虑,最终选定“关爱与社群中心”这一富有深意的名称。事实上,这里所关注的不仅是员工午休时分的需求,更是其全方位的福祉。多功能的环境设计既满足日常咖啡小憩与午餐聚会,也适配企业全体会议与团队研讨。此外,诸如赛事直播夜、晚间棋类对弈等社交活动亦在此生动开展。

在这里,设计团队提出的“关怀”理念延伸至整个区域:包括带休息区的图书室、以及多间极具吸引力的会议室,共同构建出一个既激发活力、又强化归属感的交流场域。整体项目在实现功能多元的同时,更成为促进沟通、凝聚团队认同的动人存在。

德国VBM医疗科技:员工餐厅亦是咖啡办公与社群枢纽 德国VBM医疗科技:员工餐厅亦是咖啡办公与社群枢纽

02/ 多样化的就座选择

为适应团队共同观看赛事直播这类激奋人心的社交场景,设计团队特别设计了配备嵌入式桌台的阶梯式观赛区。其模块化座椅软垫可支持灵活自由组合与轻松移动,为空间赋予灵活应变的生命力。

这一餐饮中心不仅功能灵活,其温暖而多彩的设计同样出色,为来自行政、研发、生产及仓储部门的200名员工营造出促进交流、温馨舒适的沟通环境。与此同时,该空间也为个人或小团队提供了静思与独处的可能。“我们以中央咖啡吧台为核心,在空间中布置了多样化的就座选择,”设计师Rene Rauls如此阐释平面布局理念,”从私密的小型座岛、开放的用餐区,到设有阶梯座席的'观赛广场',每个人都能在此找到自己钟爱的角落。”

德国VBM医疗科技:员工餐厅亦是咖啡办公与社群枢纽 德国VBM医疗科技:员工餐厅亦是咖啡办公与社群枢纽

03/ 企业形象的空间转译

源于该医疗科技公司以蓝色为核心的企业视觉形象,设计团队衍生出一套和谐且富有居家氛围的色彩与材质体系,将不同层次的蓝与绿色、大地色调相结合。空间构成上,蓝色菲尼克斯板和可丽耐材质打造的固定家具,与软木、藤编等吸声元素相辅相成;橡木贴皮的长椅与桌椅、彩色地毯及亚麻地板、陶土花盆中的绿植共同丰富了空间场景。大幅艺术画作点缀于暖灰色墙面。位于上层的休闲区与图书角完善了整体规划。所有塑造空间氛围的核心元素均依据室内设计师的图纸定制,仅椅凳类家具选用品牌系列产品。

德国VBM医疗科技:员工餐厅亦是咖啡办公与社群枢纽

04/ 快速便捷高效

几乎所有员工都能在15分钟内聚集于此,共享咖啡时光。咖啡杯挂于挂钩上,取用便捷迅速。此区域墙面采用karuun品牌的藤编层压板装饰而成。

德国VBM医疗科技:员工餐厅亦是咖啡办公与社群枢纽

05/ 整体蓝调

蓝色矿物材质提升了狭长厨房中岛的质感。该材质与底柜的哑光蓝色表面相呼应。金属拉手同样选用蓝色调,共同塑造出整体的蓝色视觉风格。

德国VBM医疗科技:员工餐厅亦是咖啡办公与社群枢纽

06/ 艺术相融

墙面的艺术作品由本地艺术家使用电钻创作而成,独具创意。后方区域通过两级阶梯抬升,搭配地毯铺设,营造出极致舒适的就餐氛围。位于空间中央的圆形“主桌”,是众人相聚的核心所在。

德国VBM医疗科技:员工餐厅亦是咖啡办公与社群枢纽 德国VBM医疗科技:员工餐厅亦是咖啡办公与社群枢纽 德国VBM医疗科技:员工餐厅亦是咖啡办公与社群枢纽

07/ 稳固扎根的不仅是绿植

一张配有超大内置植物槽的圆形高桌,成为空间的核心焦点。真实绿植提升了空间环境的停留舒适度,并注入了自然质感和生机与活力。尤为和谐的是,陶土色调的巧妙融入,进一步丰富了空间的色彩层次与温度感。

德国VBM医疗科技:员工餐厅亦是咖啡办公与社群枢纽

08/ 坚实背靠的守护者

正如一位可靠的守护者应有的姿态,这排座区长椅以格外坚实的靠背提供倚靠支持。座椅垫中部微微下沉的精心设计,进一步提升了就座舒适度。

德国VBM医疗科技:员工餐厅亦是咖啡办公与社群枢纽

09/ 细节铸就差异

一条色彩对比鲜明的围边,保护着中央圆形高桌的边缘。精妙细节在于:橡木贴皮的木纹走向与桌角呈对角线完美收合。

德国VBM医疗科技:员工餐厅亦是咖啡办公与社群枢纽

10/ 镜面替代窗景

茶饮站配备两个水龙头,分别供应热水与冷水。一面镜子既作为窗户的视觉延伸,也满足了防溅水的功能需求。流畅过渡:内置的橡木贴皮长椅顺应圆润转角贴合而设,形成自然衔接。

德国VBM医疗科技:员工餐厅亦是咖啡办公与社群枢纽

11/ 软木完善声学概念

圆形高桌的底座采用波纹软木包裹,该材质不仅呼应了空间的声学优化设计,更增添了自然质感。桌面上一圈圆形开口,使中央桌脚向上延伸的形态得以展现。

德国VBM医疗科技:员工餐厅亦是咖啡办公与社群枢纽

12/ 休闲区与图书角

上层的嵌入式书架系统重新界定了空间边界,而玻璃隔墙则在保持分区的同时确保了视线的通透。柔软的地毯巧妙区隔出休闲区域。

德国VBM医疗科技:员工餐厅亦是咖啡办公与社群枢纽 德国VBM医疗科技:员工餐厅亦是咖啡办公与社群枢纽 德国VBM医疗科技:员工餐厅亦是咖啡办公与社群枢纽 德国VBM医疗科技:员工餐厅亦是咖啡办公与社群枢纽 德国VBM医疗科技:员工餐厅亦是咖啡办公与社群枢纽

13/ 会议室:声学优化、照明设计与窗景替代

一面蓝色镜子再次承担了替代窗户的功能。会议室中悬挂的蓝色盒形吊灯来自基辅的+kouple品牌。全高的窗帘不仅完善了声学设计,更可在视频会议时实现最大程度的遮光效果。

德国VBM医疗科技:员工餐厅亦是咖啡办公与社群枢纽 德国VBM医疗科技:员工餐厅亦是咖啡办公与社群枢纽

14/ 以城市名替代房间编号

在名为“Miami”的空间中,个人电子设备可在高吧桌旁随时接入使用。这间用于专注工作的空间配备了专业声学天花。其内灵活布置的休闲家具均选自UnternehmenForm的UF系列。该系列的优势在于:凭借其丰富的可能性,能完美契合整体设计与功能需求。

德国VBM医疗科技:员工餐厅亦是咖啡办公与社群枢纽 德国VBM医疗科技:员工餐厅亦是咖啡办公与社群枢纽 德国VBM医疗科技:员工餐厅亦是咖啡办公与社群枢纽

特色产品应用——

1、Super Heavy吧椅\圆凳,品牌:UnternehmenForm

德国VBM医疗科技:员工餐厅亦是咖啡办公与社群枢纽 德国VBM医疗科技:员工餐厅亦是咖啡办公与社群枢纽

2、ADD PAD多元模块组合家具,品牌:UnternehmenForm

德国VBM医疗科技:员工餐厅亦是咖啡办公与社群枢纽 德国VBM医疗科技:员工餐厅亦是咖啡办公与社群枢纽 德国VBM医疗科技:员工餐厅亦是咖啡办公与社群枢纽

3、UF家具系列,品牌:UnternehmenForm

德国VBM医疗科技:员工餐厅亦是咖啡办公与社群枢纽

4、Spotty射灯,品牌:+kouple

德国VBM医疗科技:员工餐厅亦是咖啡办公与社群枢纽 德国VBM医疗科技:员工餐厅亦是咖啡办公与社群枢纽

5、BLT_1线性灯,品牌:+kouple

德国VBM医疗科技:员工餐厅亦是咖啡办公与社群枢纽 德国VBM医疗科技:员工餐厅亦是咖啡办公与社群枢纽

编译:时尚办公网,转载请注明。