Vivo通信:巴西海岛上的灵动办公空间

Vivo Office Florianopolis By ENTRE Arquitetos

整理:时尚办公网 | 发布时间:2026年03月04日
Vivo通信:巴西海岛上的灵动办公空间
设计:ENTRE Arquitetos
设计团队:Juliana Pimenta、Tais Fagundes
地址:巴西 弗洛里亚诺波利斯
面积:130 平方米
时间:2025年
摄影:Mariana Boro
Tags:通信,亲生物设计、海岸曲线、流动韵律、开放通透、定制化、声学舒适性、岛屿隐喻、灯膜、混合办公

由ENTRE Arquitetos设计团队打造的Vivo通信公司办公室,将自然元素与尖端技术和谐相融,在葱郁的海岸景观中打造出一个促进连接与协作、激发灵感的工作空间。项目位于巴西的弗洛里亚诺波利斯。

Vivo通信:巴西海岛上的灵动办公空间

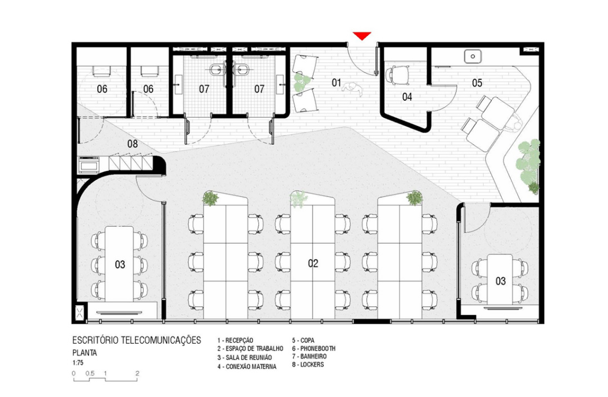
Vivo通信公司需要在位于海岛之上、被水域和热带原生植被环绕的滨海城市弗洛里亚诺波利斯设立分支机构。室内设计概念源于对空间本质的探索,运用象征性元素建立与所在地及使用者的深层联结。设计中的有机形态借鉴了海岸线的自然曲线与潮汐的流动韵律,自然光线与漫射照明相互交融,共同营造出联结古老传承与前沿科技的灵感空间。

Vivo通信:巴西海岛上的灵动办公空间 Vivo通信:巴西海岛上的灵动办公空间

空间设计将辅助功能区沿入口墙体布置,释放出中央区域作为开放的公共空间,并通过自然采光加以强化。这一严谨而包容的设计手法,营造出集体优先于个体的氛围,呼应了当代工作方式。这种双重性也体现在材料选择中:辅助功能区被蜿蜒连续的隐藏式格栅门板统一包裹,形成整体感;而开放区域则采用轻质反光材料——烤漆金属、浅色饰面、中性色调——增强整个空间的光感与通透性。

工作台位于连接所有封闭空间的中心节点,形成一个互联、动态且视野通透的场域。两组悬浮的巨型发光装置隐喻圣卡塔琳娜岛形态,聚焦于工作区域,构筑出契合人体尺度的连续漫射光环境。

Vivo通信:巴西海岛上的灵动办公空间 Vivo通信:巴西海岛上的灵动办公空间 Vivo通信:巴西海岛上的灵动办公空间 Vivo通信:巴西海岛上的灵动办公空间 Vivo通信:巴西海岛上的灵动办公空间

为办公空间专属定制设计的工作台,在动线区与工作站之间形成过渡,并兼具储物功能,同时将亲生物设计自然融入环境中。工作站之间设置的隔音挡板有效提升声学舒适度。因此,即便在有限的空间尺度,本项目仍试图构建城市性与集体性的张力:它超越传统办公空间的定位,成为混合工作模式与人性化设计原则交汇的枢纽。这处空间不仅满足功能需求,更彰显建筑作为联结人、场所与时间的媒介力量。

Vivo通信:巴西海岛上的灵动办公空间 Vivo通信:巴西海岛上的灵动办公空间 Vivo通信:巴西海岛上的灵动办公空间 Vivo通信:巴西海岛上的灵动办公空间

编译:时尚办公网,转载请注明。